Remodelación Oficina Torre UNO (OT1)

tipo de proyecto:

comercial

cliente:

Huawei Technologies de Venezuela

año:

2013

ubicación:

Edificio Torre Uno, Calle Orinoco, Urb. Las Mercedes, Caracas

estatus:

Construido

área de construcción:

426,00 m2

capacidad:

40 personas simultáneamente

dirección de proyecto:

AREPA Arquitectura Ecología y Paisaje

director de proyecto:

Arq. Ignacio Cardona

arquitectura:

Arq. Oscar Rodríguez / Arq. Jesús Belmonte / Arq. Rodrigo Guerra

instalaciones eléctricas:

ENTELEKIA C.A

instalaciones mecánicas:

ENTELEKIA C.A

instalaciones contra incendio:

ENTELEKIA C.A

paisajismo:

AREPA Arquitectura Ecología y Paisaje

contratista:

AREPA Arquitectura Ecología y Paisaje

residente:

Arq. Onofre Rodríguez

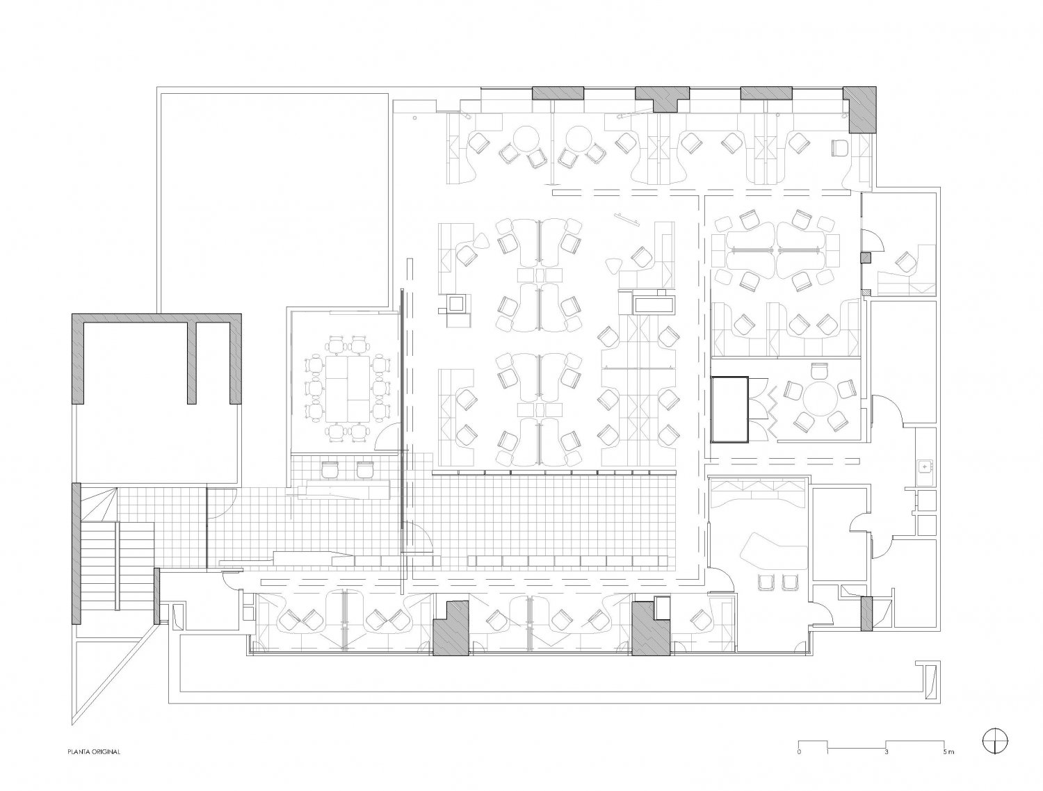
Las oficinas ubicadas en el Penthouse de la Torre Uno de Las Mercedes corresponden a un proyecto de oficinas de alto nivel de diseño originalmente llamadas Oficinas Cygnus y que fueron construidas en el año 2001 bajo la coordinación de proyectos de la Oficina BAK Arquitectura. En la actualidad, el inmueble se encuentra en desuso y sirvió de depósito para algunas de las oficinas de la Torre Uno. Muchos de los elementos existentes se encuentran en buen estado y pueden ser reutilizados incluyendo tabiquería, techos, piezas sanitarias, sistema mecánico y sistema eléctrico.

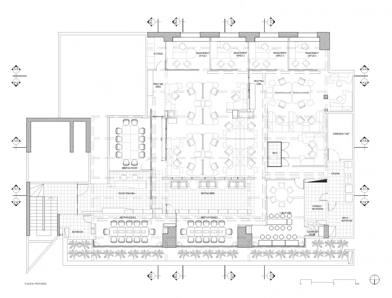
La propuesta para la remodelación del Penthouse de la Torre Uno en Las Mercedes, tiene como objetivo poner en funcionamiento este piso de oficinas para la compañía HUAWEI TECNOLOGIES, todo a través de la reincorporación de los elementos existentes en el lugar, adaptándolos a los requerimientos espaciales y funcionales establecidos por el cliente. El proyecto tuvo como premisa que, con la menor cantidad de obras posibles, se adecúe un espacio de trabajo óptimo que genere mayores beneficios al trabajador y así se promueva la producción.

Para cumplir con los requerimientos programáticos, se plantearon una serie de divisiones en drywall y vidrio opaco necesarios para la separación de los espacios solicitados pero siempre tomando en cuenta la ventilación del lugar y los criterios de privacidad que algunos espacios requieren. Se trabajó también en la rectificación del mobiliario de madera existente, al mismo tiempo que se construyeron importantes piezas de madera que substituían a las que ya estaban muy deterioradas por el tiempo.